croatia osiguranje jagićeva, uredi

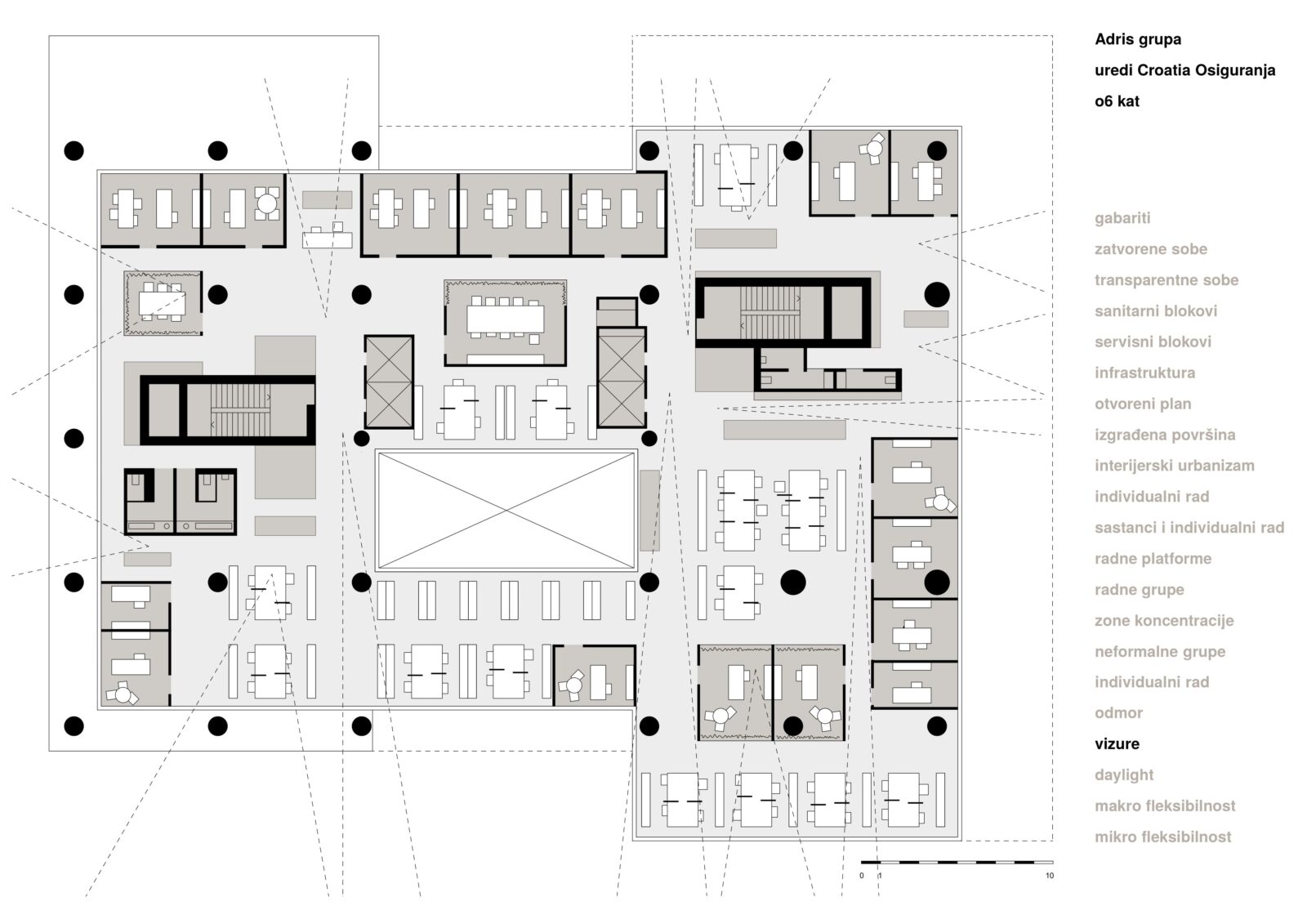
uredi croatia osiguranja nalaze se na šest katova poslovne zgrade otvorenog tlocrta i robusne skeletne nosive konstrucije. njezina struktura nije sasvim generička, sastoji se od dubokih zatvorenih prostora u čije središte jedva dopire dnevno svjetlo i unutarnjih prostornih praznina koje se se prostiru i u vertikalnom i u horizontalnom pravcu. konfiguracija svake etaže međusobno se razlikuje. vertikalnu komunikaciju osiguravaju dvije jezgre s dizalima i stepeništem, a njihova pozicija unutar razvedenog volumena otežava organizaciju prostornih cjelina. zatečenu prostornu formaciju karakterizira i izražen problem orijentiranja i pronalaženja logičnih ruta kretanja.

projektantska odluka je postojeće prostorne formacije tumačiti kao zatečeni pejzaž specifične topografije u unutar njega ugraditi novi organizam po principu interijerskog urbanizma, metode posebno osmišljene za specifičnosti zadanog prostora.

takva strategija organizacije prostora reagira na postojeću složenu prostornu konfiguraciju zgrade i uvodi novi uredski pejzaž sastavljen od zatvorenih i transparentnih volumena. pritom nije provedeno striktno zoniranje, ali su prostorni elementi osmišljeni kao metafora funkcije CIAM-ovskog urbanizma: rad, stanovanje, zelenilo, infrastruktura i promet.

prostorna organizacija je hibrid fleksibilnog otvorenog plana i čvrstih objekata, s pažljivo uređenim rutama kretanja i zastajanja te kontrolom pogleda. formiran je pregledan prostor za intuitivno snalaženje. prostor između volumena razvijen je u vidu ulica i trgova pri čemu nema pasivnih ili neaktivnih zona.

kompozicija volumena obrnuta je od očekivane. inverzijom situacije moći, uz pročelje se ne priljubljuje soba nadređenih pojedinaca i uz najatraktivniju zonu prostora smještaju se radne platforme za grupni rad. na taj način duboko uvučeni prostori nisu degradirani jer do njih dopire dnevno svjetlo, a afirmacijom demokratičnosti svima se daje pravo pogleda na grad.

prostori komunikacije samo su naizgled apsurdno pozicionirani uz pročelje, u zone s najatraktivnijim vizurama na grad. tako projektiran prostor nije namijenjen samo komunikaciji kao kretanju, već i komunikaciji kao interakciji. pažljivo oblikovani procjepi za odmor, individualni rad ili neformalni sastanak kreiraju prostor koji je višak, izvan zadanog programa, socijalni prostor, mjesto susreta kao u gradu, ‘javni prostor’, kao nastojanje da se stvori višak vrijednosti i za zaposlene i za poslodavca.

Poslovna zgrada Adris Grupa/ Croatia osiguranje, Zagreb

 

Interijer poslovne zgrade Adris Grupe (AG) / Croatia osiguranja (CO) interpolirane u bivši industrijski blok u središtu Zagreba jedinstveno je istraživanje teme suvremenih uredskih prostora u kojem su afirmirane teme otvorenosti i fleksibilnosti radnih ambijenata unutar izrazito precizno projektirane interijerske arhitekture. Radeći unutar već postojeće zgrade, Ergić projektira novi i složeni «interijerski urbanizam» temeljem principa suvremenog totalnog dizajna u kojem su pažljivo koordinirani oblikovne, tehnološke i funkcionalne teme. Tako nastaje formalno i doživljajno bogat uredski pejzaž koji udomljuje vrlo heterogene sadržaje te nudi raznolike prostorne situacije i ambijente pažljivo usklađene sa specifičnim potrebama. Za razliku od mahom generičkih suvremenih uredskih zgrada, Zgrada AG/ CO vrlo je projektirana s velikom pažnjom i prema mjerilu detalja i prema mjerilu cjeline kako bi odgovorila na specifične radne procese, ali i oblikovala simbolička značenja prostora korporacije.

 

Zadatak

Investitor opsežnog projekta je Adris grupa, jedna od tri najsnažnije hrvatske korporacije koja napušta duhansku industriju te se okreće turizmu, proizvodnji zdrave hrane i financijskom sektoru. Ergić od sredine 1990-tih kontinuirano projektira prostore Uprave AG u Rovinju i Zagrebu, istražuje teme fleksibilnosti radnih prostora i razvija specifičnu estetiku koju odlikuje oblikovna redukcija, minuciozno detaljiranje, no i jedinstvena sposobnost stvaranja raznolikih atmosfera. Projektiranje reprezentativnih prostora za Uprave AG na 8. katu zgrade kulminacija je te suradnje. S druge strane, prilikom projektiranja prostora za Croatia osiguranje, smještenima od 1. do 7. kata zgrade zadatak je bio posebno složen jer se radilo o trenutku kada je tvrtka preuzeta u AG i kojoj slijedi reorganizacija pa program nije bio jasno definiran. Arhitektonski projekt je u ovom slučaju i bio sredstvo pre-projektiranja čitave tvrtke i njene prilagodbe korporativnim standardima AG.

 

Totalni dizajn

Pojam totalnog dizajna u radu Ergić ima posebno značenje i odnosi se na brižljivu koordinaciju tehnologije, arhitektonskog oblikovanja i tretmana detalja, te pristupu odabira opreme i namještaja. Totalni dizajn, baziran u uvjerenju Ergić da arhitektura mora biti cjelovito i sintetski projektirana, ima dva glavna cilja: funkcionalnost i transformabilnost te oblikovanje prostornog doživljaja korisnika.

Već u samim počecima svog rada, Ergić istražuje teme transformabilnosti prostora i različitih režima korištenja. Intenzivan razvoj dostupne tehnologije osigurava Ergić širi dijapazon automatizacije, kondicioniranja i osvjetljavanja prostora, a naročito je važna tema digitalnog upravljanja i koordinacija tih elemenata koji postaju važni sudionik u arhitektonskom koreografiraju događaja i procesa. Pri tome Ergić ne fetišizira tehnologiju i ona nije element ekspresije. Sam arhitektonski okvir projektiran je tako da prihvati tehnološki aparat, ali i zadrži formalni integritet. Logika, pa i forma arhitekture interijera i u detaljima i u cjelini, što je primjerice vidljivo u trodimenzionalnim konfiguracijama stropova, korespondira s tehnološkim zahtjevima, ali i stvara sasvim autonomnu prostornu kompoziciju.

Opremanje prostora je za Ergić kulturološka tema, funkcionalni zadatak i dio oblikovanja atmosfere. Kao izvrstan poznavatelj povijesni dizajna, Ergić odabire opremu i produkte slijedeći mix and match (kombiniraj i uskladi) princip usporediv sa kustoskim radom. Prostori su pažljivo usklađene kolekcije već klasičnih ili ključnih suvremenih produkata. Ergić te produkte samouvjereno koristi na atipične načine i u specifičnim kontekstima: lampe se postavljaju na neuobičajenu visinu, namještaju se dodjeljuju nove uloge i namjene. Dio produkata u suradnji s autorima redizajnira, prilagođava prostoru i ambijentu. Kada to okolnosti zahtijevaju, Ergić djeluje i kao produkt-dizajnerica s posebnim interesom za temu customiziranja, odnosno prerade i rekompozicije.

 

Croatia osiguranje

Od prvog do sedmog kata zgrade razmješteni su uredi osiguravajućeg društva Croatia osiguranje. Putem primjene strategije interijerskog urbanizma organiziran je uredski pejzaž sačinjen od volumena različitih namjena koji ne dodiruju strop nego slobodno plutaju u prostoru. Prostorna organizacija je metafora CIAM-ovskog urbanizma: rad, «stanovanje», zelenilo te infrastruktura i promet. Ergić traži demokratičnu, egalitarnu ravnotežu prostorne kvalitete i u zatvorenim uredima i zonama za zajednički rad te svima osigurava «pravo na prirodno svjetlo» i «pravo na pogled prema eksterijeru». Prostor između volumena i infrastrukturnih i servisnih blokova razvijen je u vidu «ulica» i «trgova», pri čemu nema pasivnih ili nekativnih zona ili hodnika nego su svi u funkciji rada ili odmora. Sve etaže su otvoreni sistemi u kojima nema čvrstih granica između pojedinih radnih sektora, a projekt potiče raznolike radne situacije individualnog i grupnog rada te odmora.

Unutar radnih etaža CO proteže se volumenom raskošan meandrirajući sklop horizontalnih i vertikalnih zajednički prostora i terasa naslijeđen od izvornog projekta zgrade. U njima su smješteni kantina i prostori za objedovanje osmišljeni poput unutarnjeg trga.

Ergić je projektirala dinamični radni ambijent koji se ne mijenja fizički, nego omogućuje fluktuacije zaposlenika koji u ovisnosti o svojoj kreativnosti i potrebama koriste arhitektonski okvir. Arhitektura zadržava formalni integritet, a da je još uvijek inkluzivna i poziva korisnika da otkriva nove radne i socijalne situacije. Svijetli tonovi, rahlost i otvorenost prostora, kontinuirana prisutnost eksterijera u interijeru, otoci zelenila i šarmantne grupe za sjedenje sastavnice su ambijenta koji podržava dignitet rada ali komunicira ambicije korporacije.

Fleksibilni radni stolovi nastali u suradnji s tvrtkom Vira, na osnovi dizajna Ronana i Erwana Bouroulleca. U suradnji s tvrtkom Modular razvila je lampu koja je hibrid nekoliko različitih rješenja kako bi se pomirili zahtjevi ograničenog budžeta i postave velikog broja štedljivih rasvjetnih tijela u svrhu postizanja LEED standarda.

 

Arhitektura kao poticaj i didaktičko sredstvo

Projekt zgrade AG / CO je sintetsko istraživanje organizacionih modela radnih prostora i arhitektonske forme. Ergić uspijeva uskladiti naizgled oprečne ambicije: primjenom proširenog poimanja totalnog dizajna, koji je proveden u svim mjerilima, formiran je elastičan, fleksibilan i doživljajno bogat ambijent. Na taj način nastaju precizno projektirani uredski pejzaži u kojima su isprepleteni različiti aspekti korporativne svakodnevice, a arhitektura djeluje poticajno, podižući kvalitetu i uvijete rada, ali i didaktički, kao zagovaratelj moderne radne i životne kulture.

 

Maroje Mrduljaš

Oris +, 2017

projekt interijera

autor
vedrana ergić

arhitektonski ured
jedanjedan arhitektura

glavni projektant
damir mance

suradnici
petar sučević, tomislav vučinić, mladen šafar, edin karamehmedović, emir redžepović, damir keglević, branimir cindori, rok pietri, nataša tiška vrsalović, dragan zgaga, milan carević, ivana vučić, tomislav jurica kaćunić

fotografije
decker + kutic

klijent
adris grupa

LOkacija
zagreb, jagićeva

površina
8000 m2

status
realizirano

godina
2016

nagrade

prva nagrada na pozivnom natječaju 2014
bernardo bernardi, nagrada udruženja hrvatskih arhitekata 2017
nominacija za nagradu mies van der rohe 2019
big see interior design award prva nagrada 2020